Nyt kauttamme myös saksalaisia Wodtke-takkoja uudenlaisella "HiClean" -pienhiukkas-suodattimella. Kuvassa malli "Stage F9" Tutustu takkoihin www.wodtke.com/en/products-solutions
Useimpiin kulmatakkasydämiin voidaan asentaa oma kulmatuki, jolloin alkuperäinen avotakan kulmatuki voidaan poistaa.
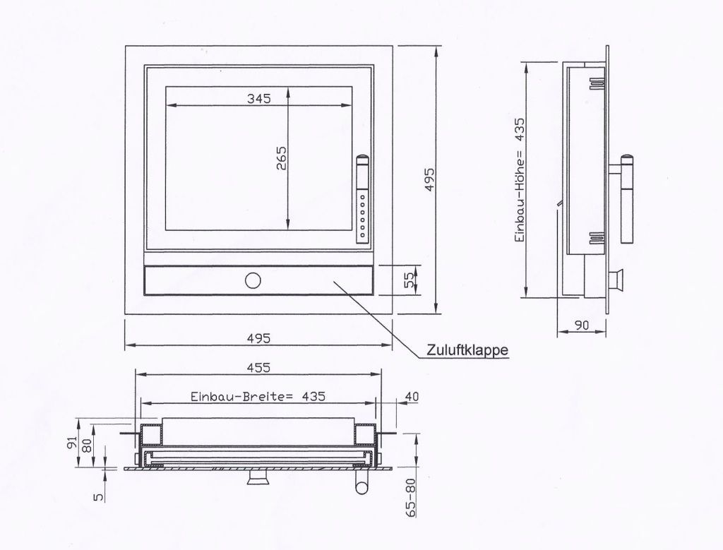
Linear Module XS -kokoa
Useimpiin kulmatakkasydämiin voidaan asentaa oma kulmatuki, jolloin alkuperäinen, avotakan monesti optisesti ja teknisesti häiritsevä tukirauta voidaan poistaa.
Saatavana myös mustana
Takkasydän asennettu vapaa-ajan asuntoon Warma-Uunin toimesta
Takkasydämen esimerkkiasennus vanhaan avotakkaan: 1. vaihe...
... 2. vaihe ...
Esimerkki asennuksen yksinkertaisuudesta - ennen ja jälkeen
Normaali yksilasinen suoramalli
Tavallinen suora luukku peiteraameilla ilman ilmansäätöä